top of page


STRUCTURAL DRAWINGS
Schematic drawings | Construction drawings | Shop drawings | Specification
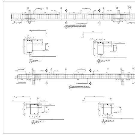
One of our main goals is to make drawings as simple as possible and informative to make field teamwork easier. That’s why the BIMspirit team is very focused on the visibility and clarity of the drawings we provide.
Another strength of our team is the automation of drawings creation. We can spend hours today to shorten the days in the future.
Project Gallery

bottom of page












